貸ビル市場 トップページ > 物件検索 > 貸倉庫:物件 No.07669 物件詳細

貸倉庫:物件 No.07669 物件詳細  

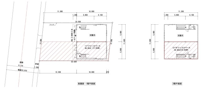
※画面をクリックすると拡大して表示されます。

物件ナンバー 07669
物件名 物件 No.07669
所在地 大阪府東大阪市
最寄り駅 近鉄 若江岩田駅
階数 1-2階
坪数 37.19坪
保証金
(総額/坪単価)
3,000,000円 /  80,667円
賃料
(総額/坪単価)
300,000円 /  8,067円
共益費
(総額/坪単価)
 
建築概要 構造
規模 2階建 竣工年 2003年9月
駐車場 あり エレベーター なし
空調 個別空調 使用時間 24時間対応

★駅徒歩圏、バス通りの美築2戸1物件

☆1F倉庫17.54坪+2F事務所19.65坪(個別空調)

★P4台可

電話でのお問い合わせ:06-6223-5900

株式会社オーネットジャパン

  • 条件検索

    エリア
    広さ
    賃料
    エリアマップから探す
    検索する

    フリーワード検索

    検索する
  • 近畿圏の倉庫物件情報が満載
  • セールスポイントからお選び下さい
    ランドマークビルをお探しのお客様
    とにかくリーズナブルな物件をお探しのお客様
    駅近でアクセスが便利な物件をお探しのお客様
    弊社がオススメする特選物件情報
  • コンテンツメニュー
    運営会社
    よくある質問
    貸ビルオーナー様へ
    サイトマップ
  • 物件リクエストフォームはこちら